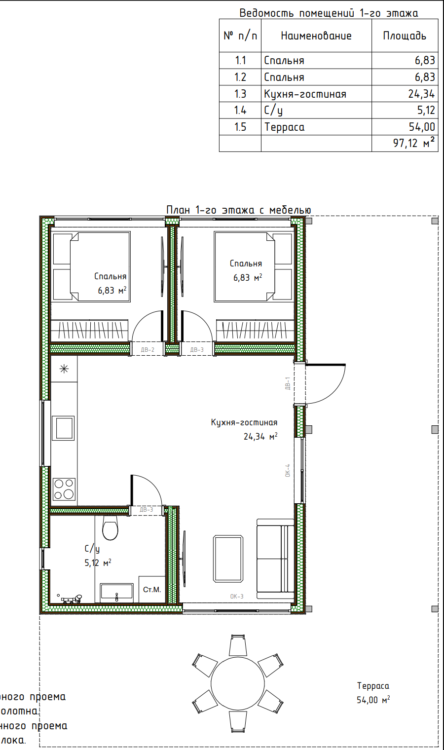
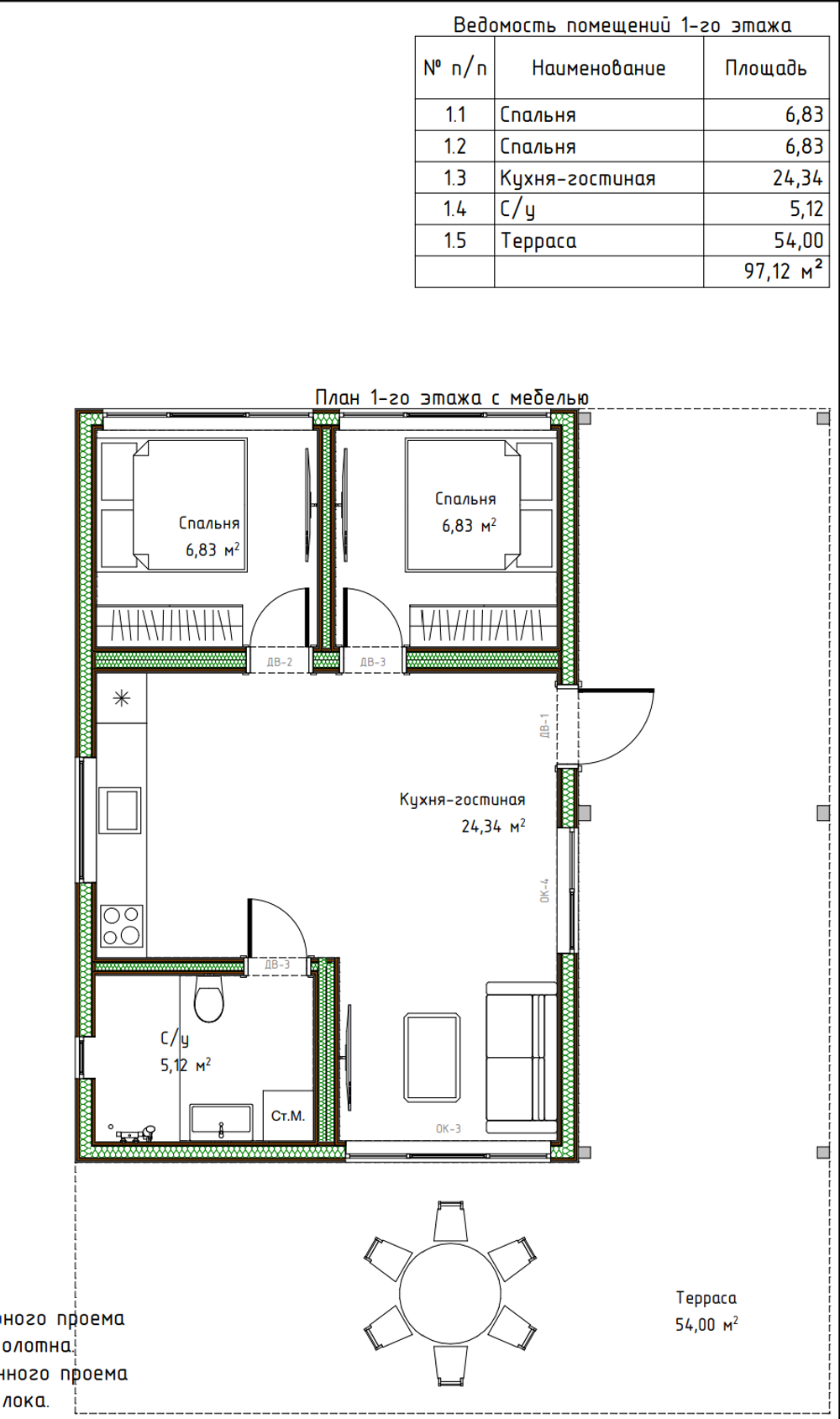
(0)

Модульный дом 97

Нет в наличии
Описание

л

Показать полностью Свернуть
Напишите нам
Запрос успешно отправлен!
Имя *
Телефон *
Сообщение *
Предзаказ
Предзаказ успешно отправлен!
Имя *
Телефон *
Заявка

Настоящим подтверждаю, что я ознакомлен и согласен с условиями оферты и политики конфиденциальности.